Vyberte stranu
O NÁS

KONTAKT

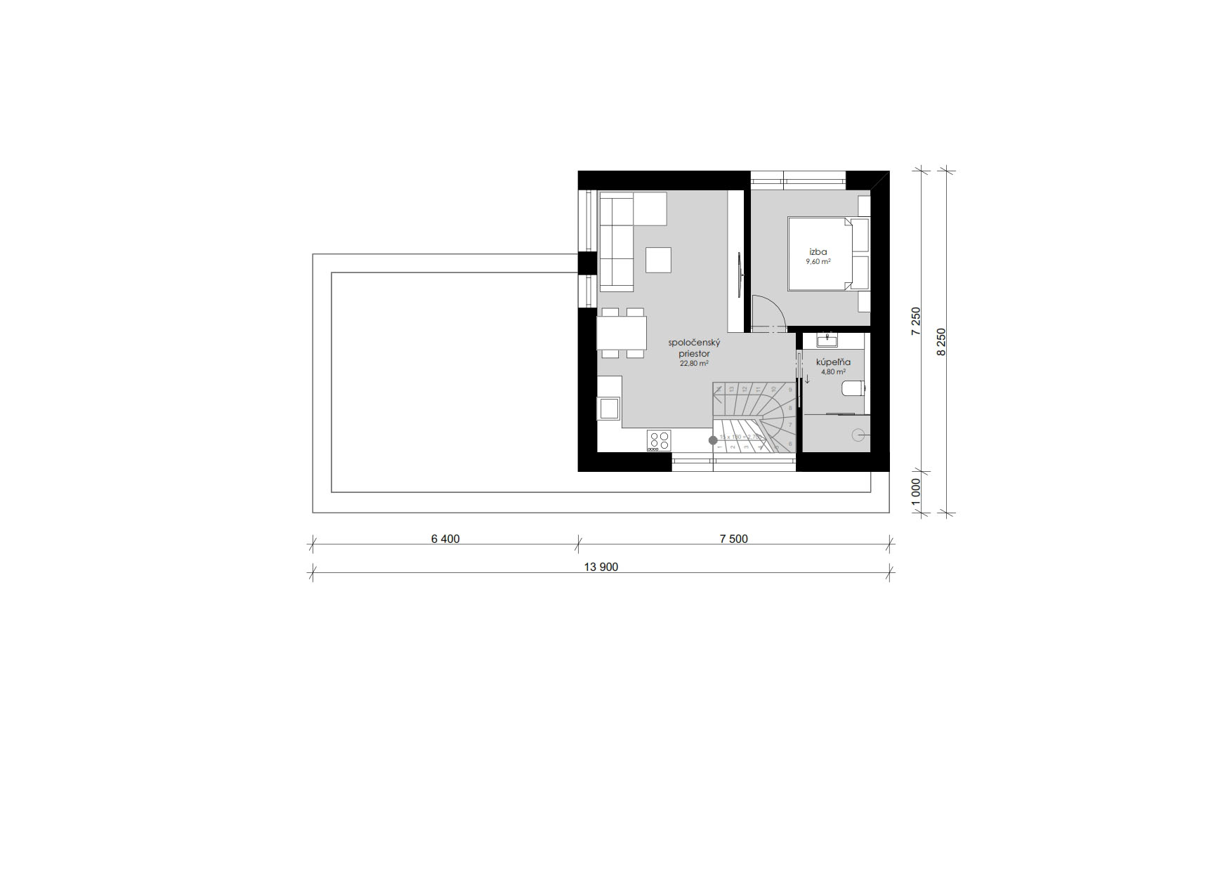
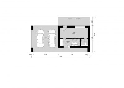
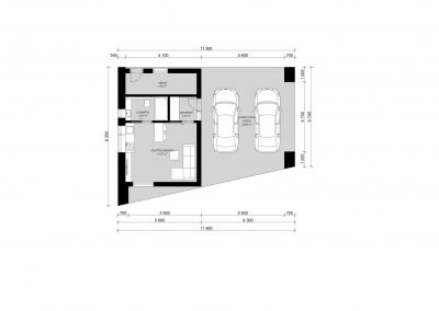
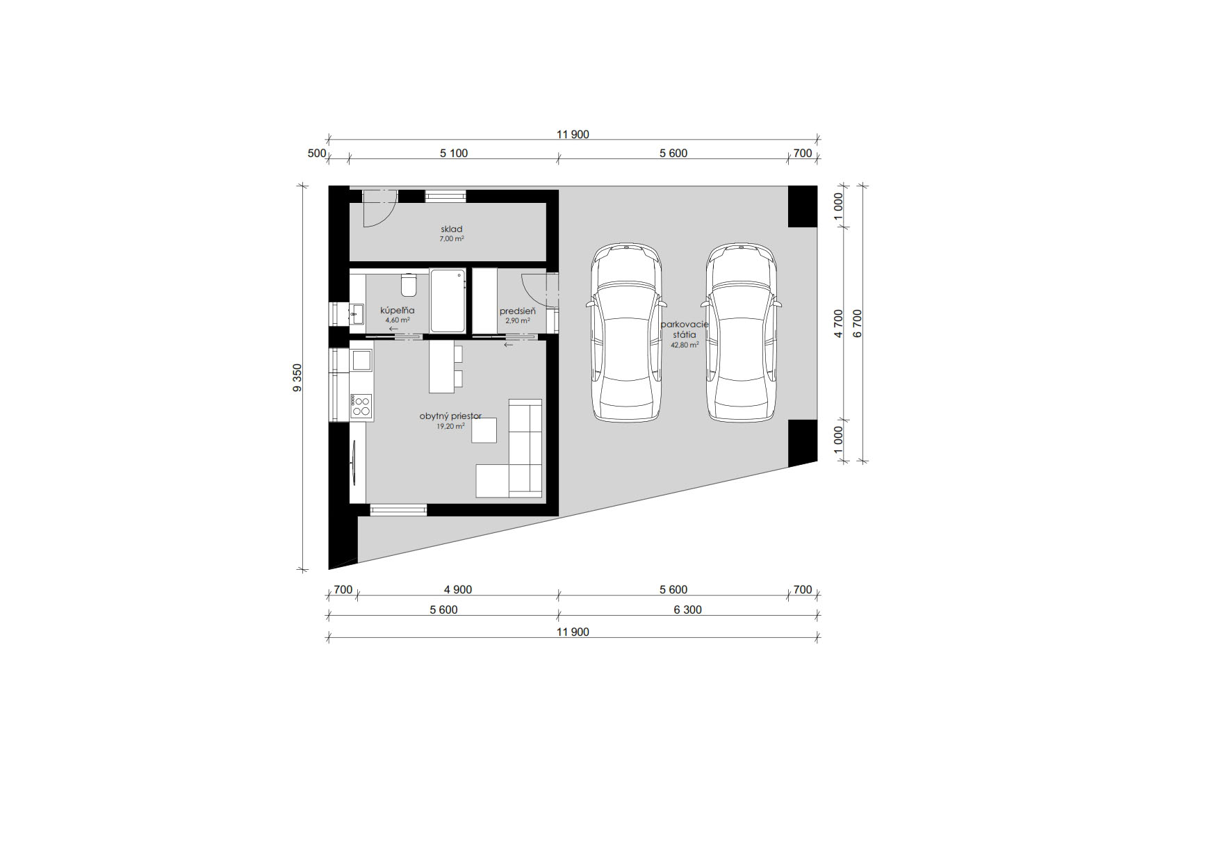
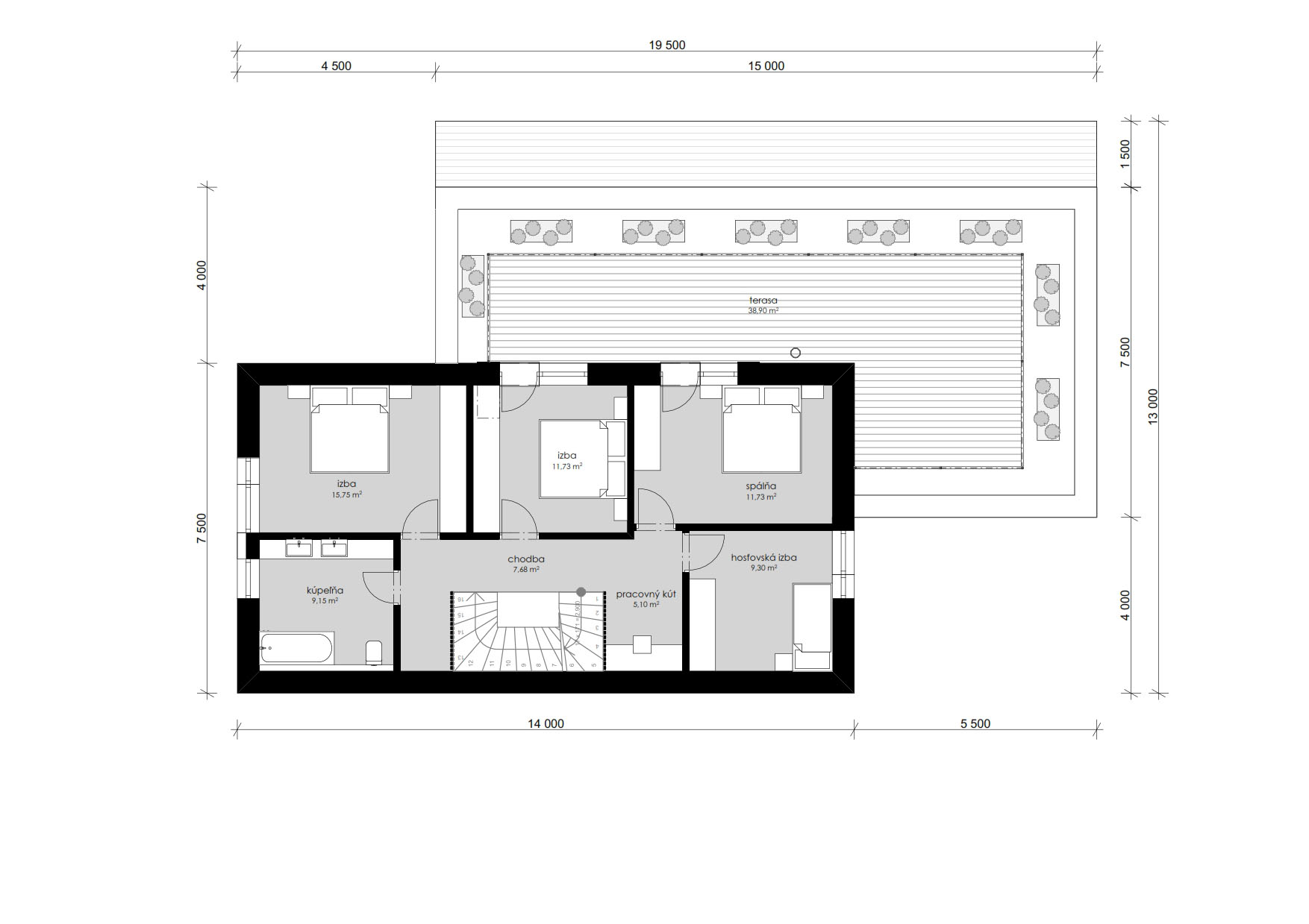
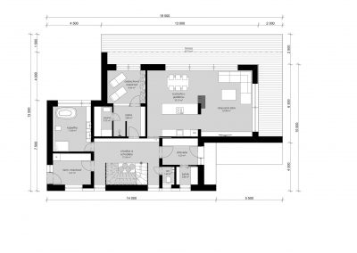
RODINNÝ DOM PS

architektonická štúdia

súkromný investor

Psáry/ČR

2019